알림
뒤로
알림 설정
뒤로
더보기
게시물 알림
내 글 반응
내가 작성한 게시물이나 댓글에 다른 사람이 댓글이나 답글을 작성하면 알려줍니다.
공지사항
사이트에서 보내는 중요한 공지를 실시간으로 알려줍니다.
Alarm
마이페이지
로그아웃
로그인이 필요합니다.
로그인
WITH 운정연
NOW 운정연
공공시설 현장
아파트 현장
서명현장
ISSUE 운정연
NEWS 운정연
HISTORY 운정연
닫기
운정연-운정신도시연합회
WITH 운정연
NOW 운정연
공공시설 현장
아파트 현장
서명현장
ISSUE 운정연
NEWS 운정연
HISTORY 운정연
site search
운정연-운정신도시연합회
WITH 운정연
NOW 운정연
공공시설 현장
아파트 현장
서명현장
ISSUE 운정연
NEWS 운정연
HISTORY 운정연
운정연-운정신도시연합회
icon
MENU
NOW 운정연
운정신도시를 사랑하는 모두가 함께 하는 현장 PHOTO 스케치!
NOW. 운정연
운정신도시를 사랑하는 모두가 함께 하는 현장
전체
공공시설
주거 / 상업
서명운동
전체
공공시설
주거 / 상업
서명운동
공공시설
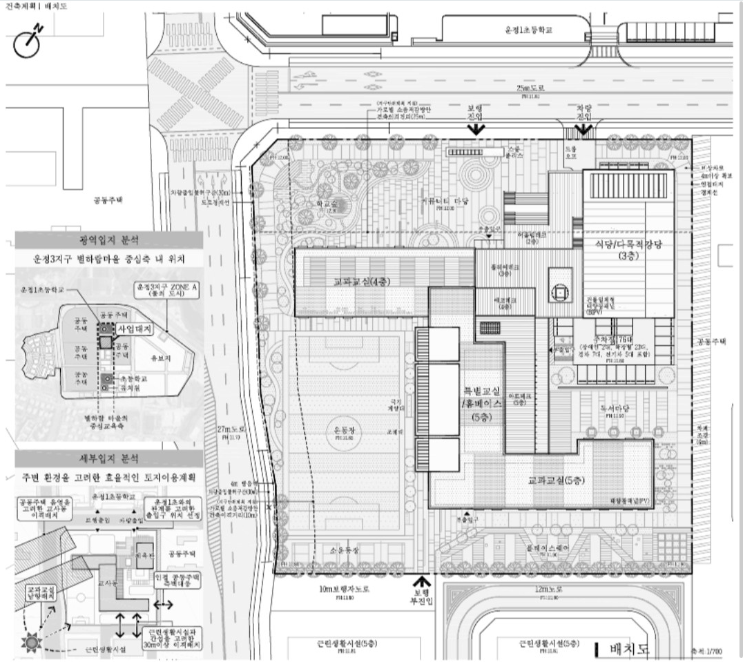
[25.11.13] 2026년 3월 개교 목표로 공사중인 별하람중(운정1중, 일반 46학급, 특수 2학급) 신축공사 현장사진
Now 운정연
조회수 58
[25.11.17] 2026년 3월 입주예정 A19BL 물향기마을9단지 운정자이 시그니처 공사현장 전경사진
[25.11.12] 2027년 3월 개교예정 운정4고(일반30급, 특수2학급) 신설학교 착공후 공사현장 전경사진
목록